
СавченкоОльга Владимировна
руководитель отдела
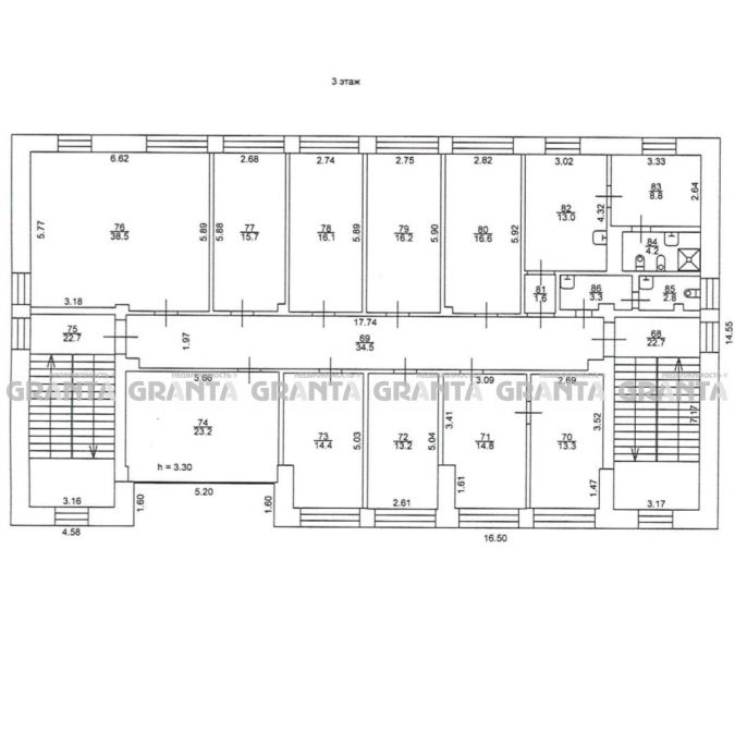
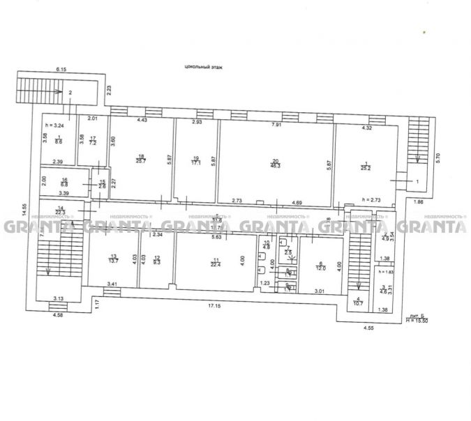
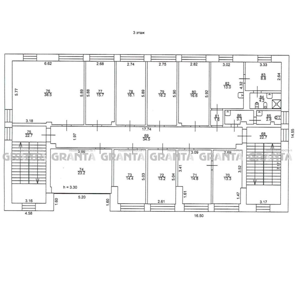
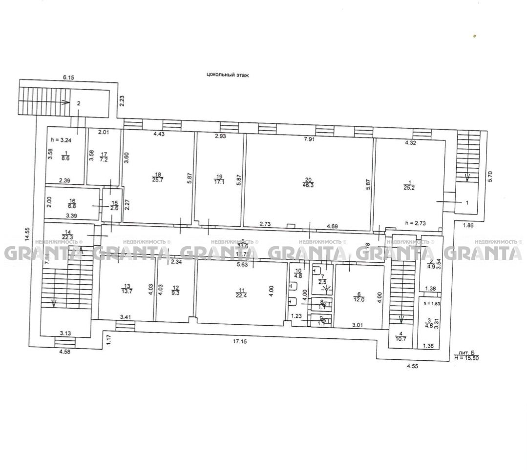
Предлагается к продаже современное нежилое 4 х-эт. кирпичное здание с цоколем в г. Ачинске, район Старый центр ( Березовая роща), общей площадью 1517.6 м2 с пристроенными боксами 300 м2 на земельном участке площадью 3 331 м2. Здание 2012 года постройки, имеется собственная ТП на 300 кВт, все системы водоснабжения, теплоснабжения, канализации централизованы, земельный участок заасфальтирован. огорожен капитальным забором. Здание сдано в аренду ключевому арендатору, который находится более 10 лет. Здание имеет большую парковку. Развитая инфраструктура, хорошая транспортная доступность. остановки общественного транспорта. Покупатель комиссию агентства не оплачивает.
