
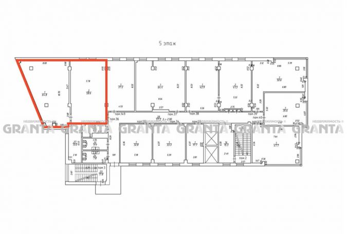
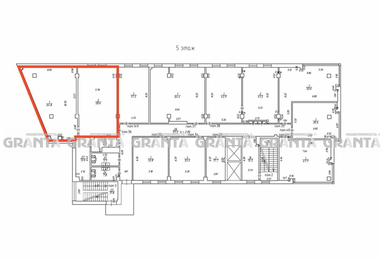
Офис, ул Молокова
- Тип
- Продажа
- Город
- Красноярск
- Район
- Советский, Взлетка
- Адрес
- ул Молокова, д. 37А
- Этаж / этажность дома:
- 5 / 15
- Площадь общая
- 123
- Тип дома:
- Кирпичный
- Тип объекта
- Офис
- Цена за квадратный метр
- 225 732 руб.
Достоинства объекта:
Продам офисное помещение в новом деловом центре «Капитал». Отлично подойдет как для собственного использования, так и для сдачи в аренду. В помещении выполнен качественный ремонт, имеется вся необходимая для работы офисная инфраструктура. Здание обслуживается управляющей компанией, которая обеспечивает чистоту офисов и мест общего пользования, поддерживает отличное техническое состояние всех инженерных систем. Инфраструктура бизнес‑центра: круглосуточная охрана и система видеонаблюдения. Минута ходьбы от строящейся станции метро, что в перспективе ещё больше увеличит привлекательность района. Наличие парковочных мест в непосредственной близости от офиса - все, что необходимо для комфортного ведения бизнеса. Развитая инфраструктура района - кафе, рестораны, банки, фитнес‑центр в пешей доступности. Собственник – физическое лицо, документы в полном порядке! Звоните, вся дополнительная информация по телефону.

