
СавченкоОльга Владимировна
руководитель отдела
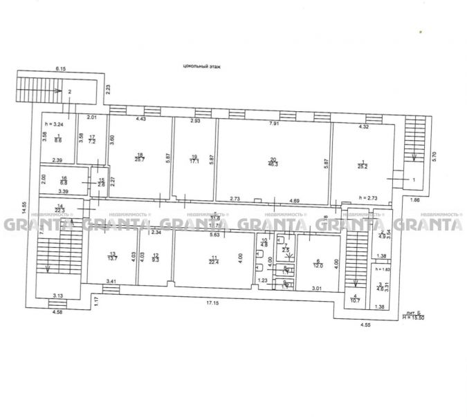
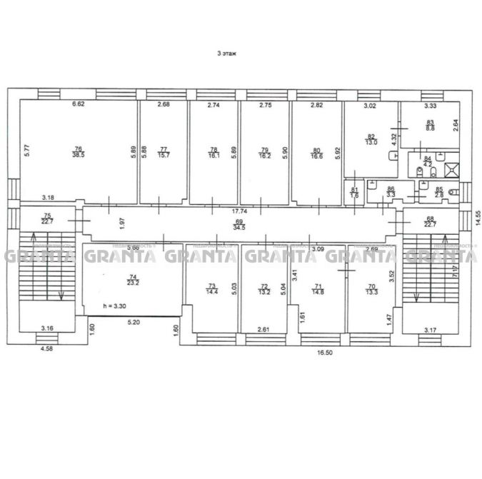
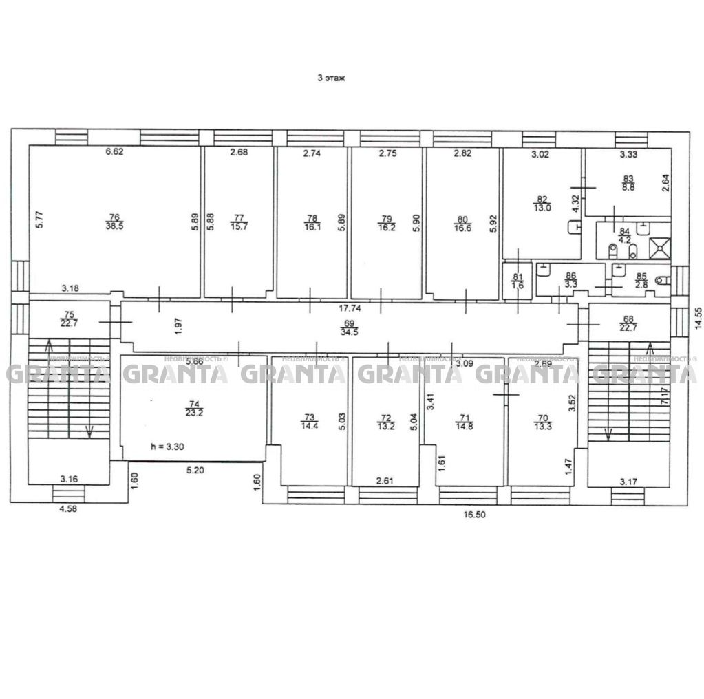
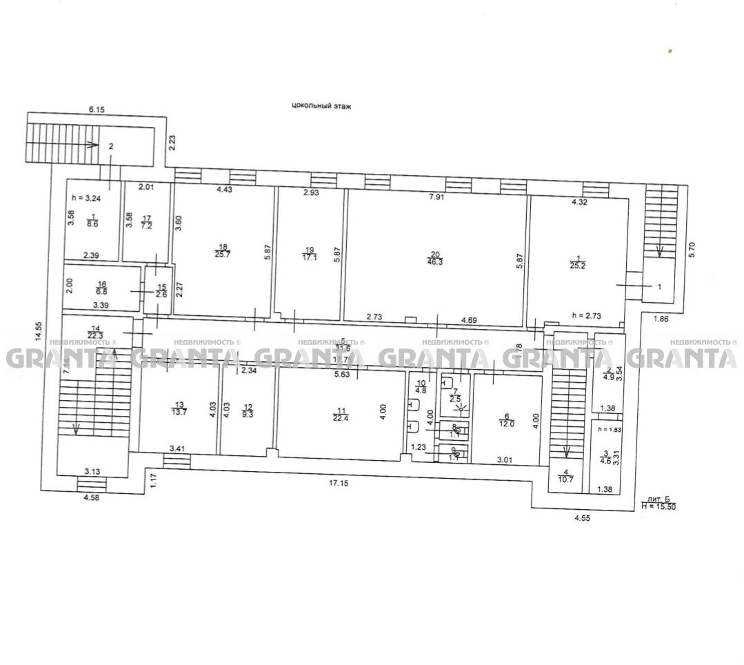
Предлагаются в аренду офисные помещение в г. Ачинске , район Старый центр (Березовая роща), в новом современном здании, площадь офисов на 3 этаже : 23.2 м2, 16.1 м2, 16.2 м2 по стоимости 550 руб./м2; цоколь с полноценным окном 17.1 м2 по стоимости 500 руб./м2. Здание оборудовано пандусом, есть большая парковка. Дополнительно возможно предоставить рекламное место. Арендатор комиссию агентства не оплачивает. Можно снять офисы по отдельности или все вместе.
